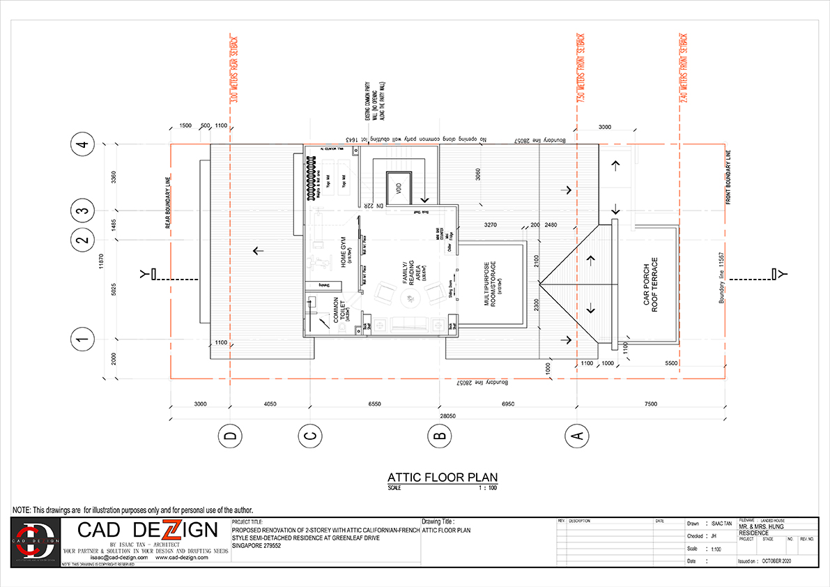
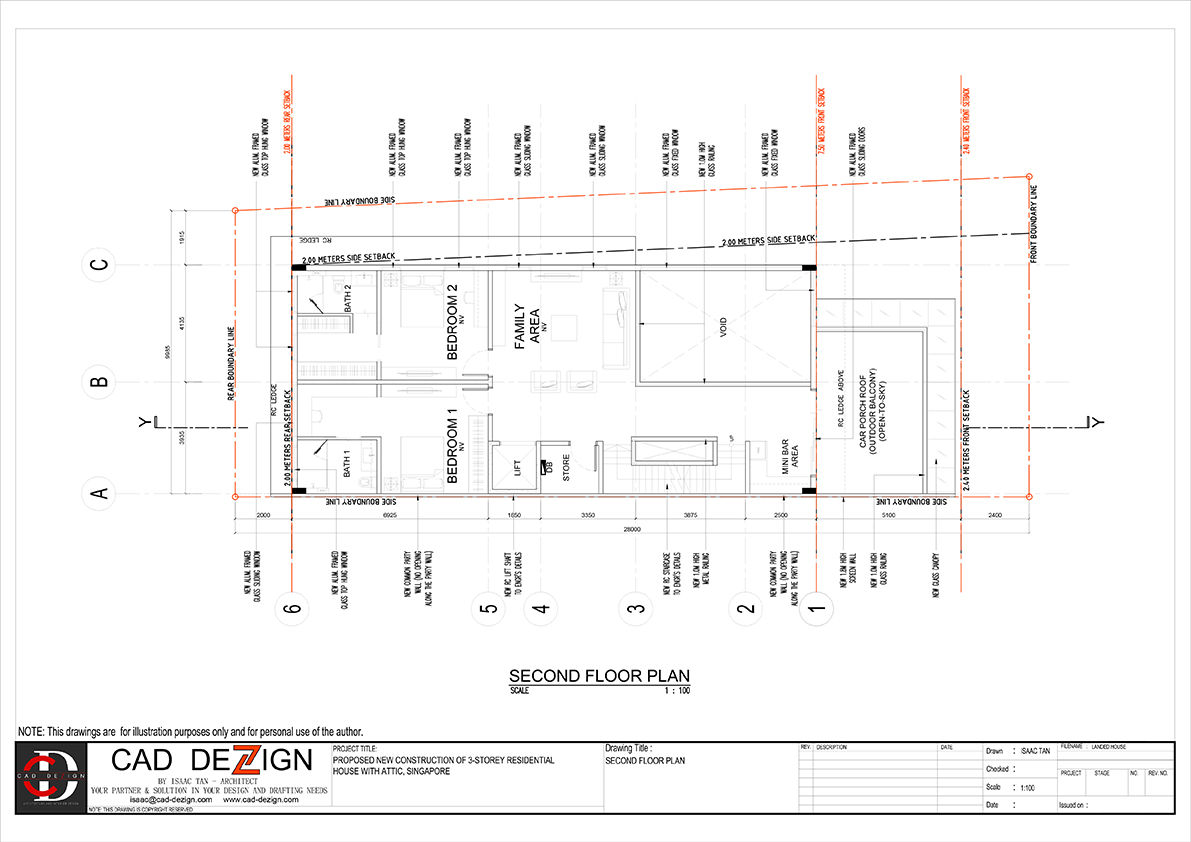
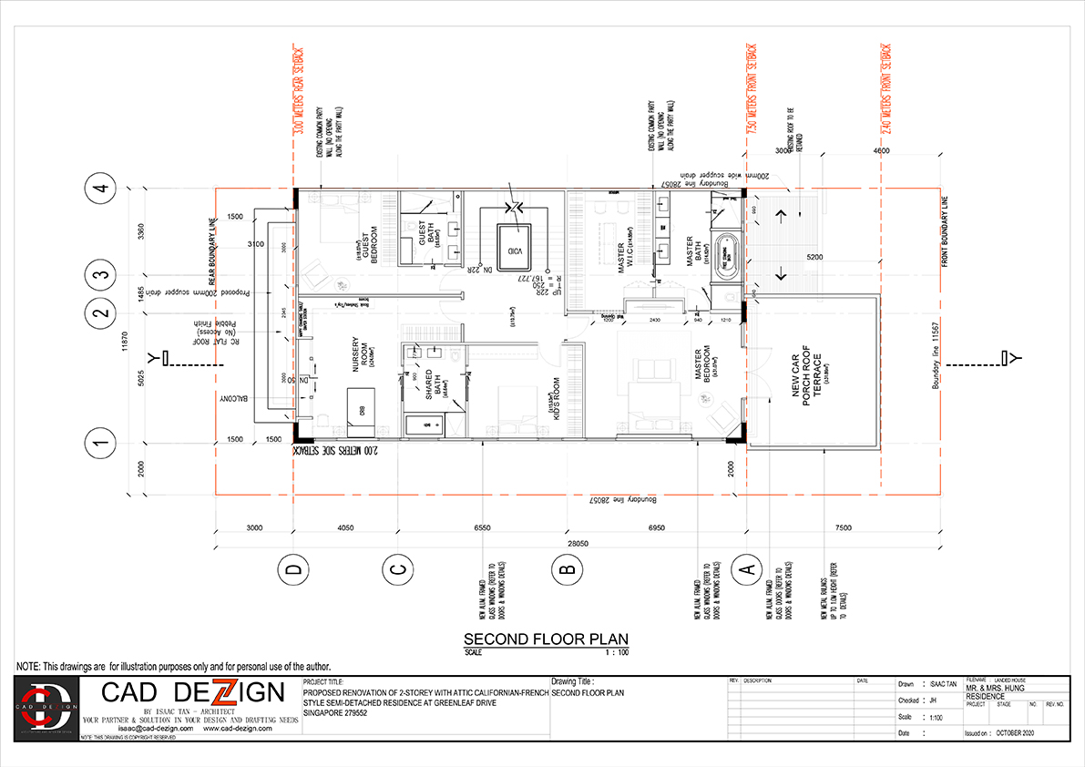
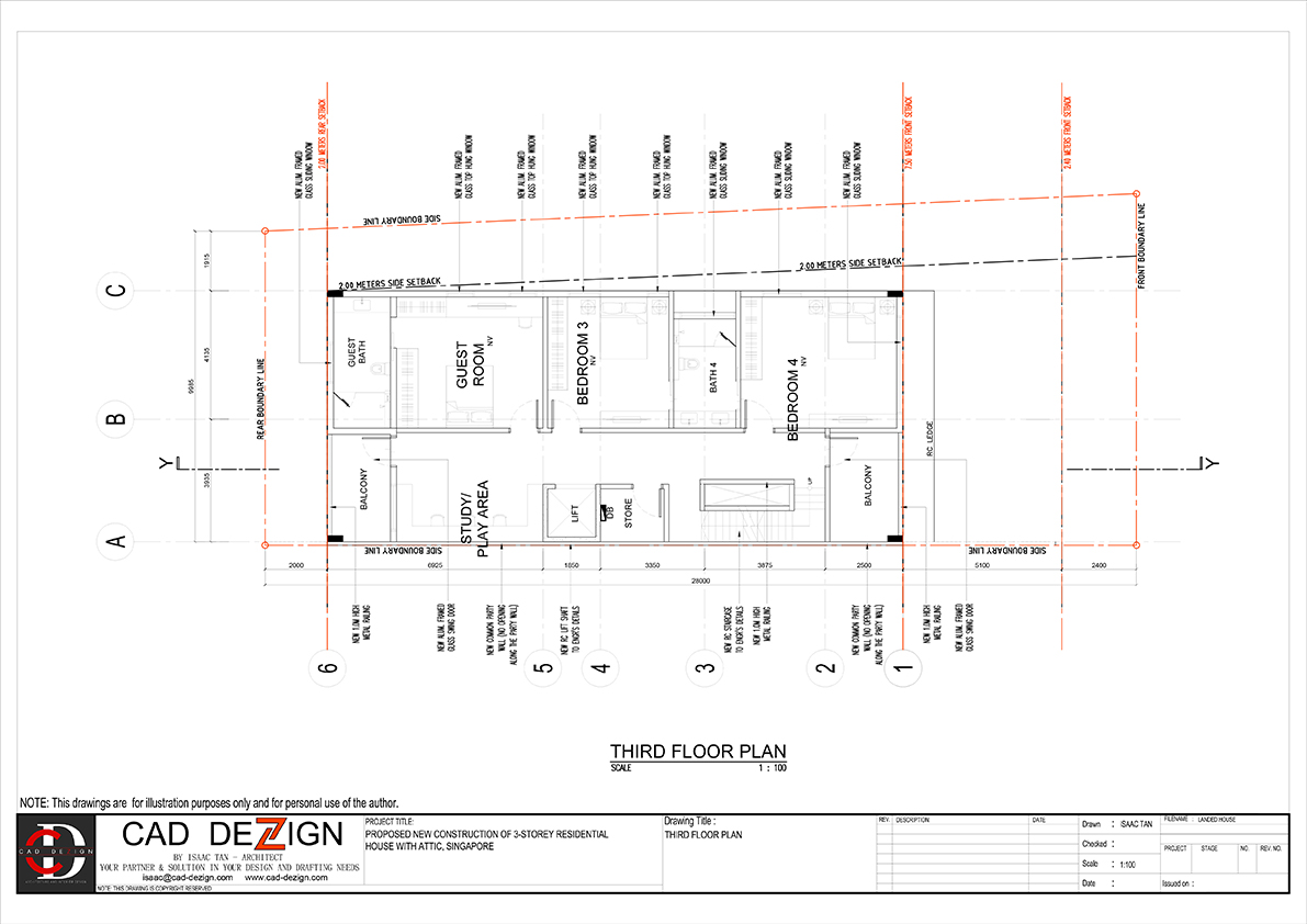
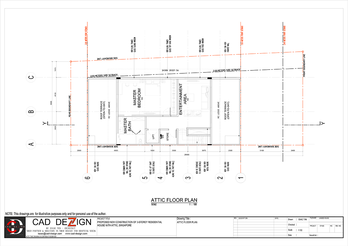
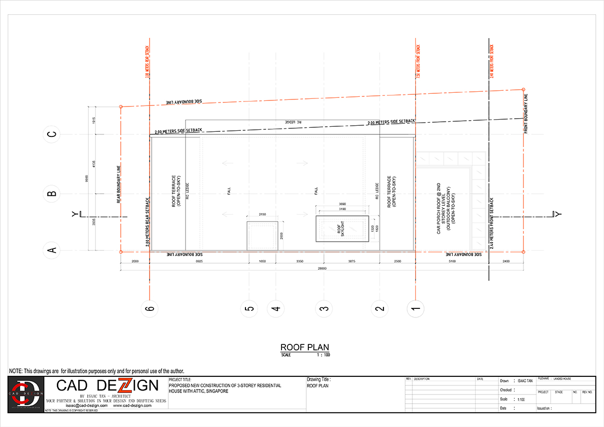
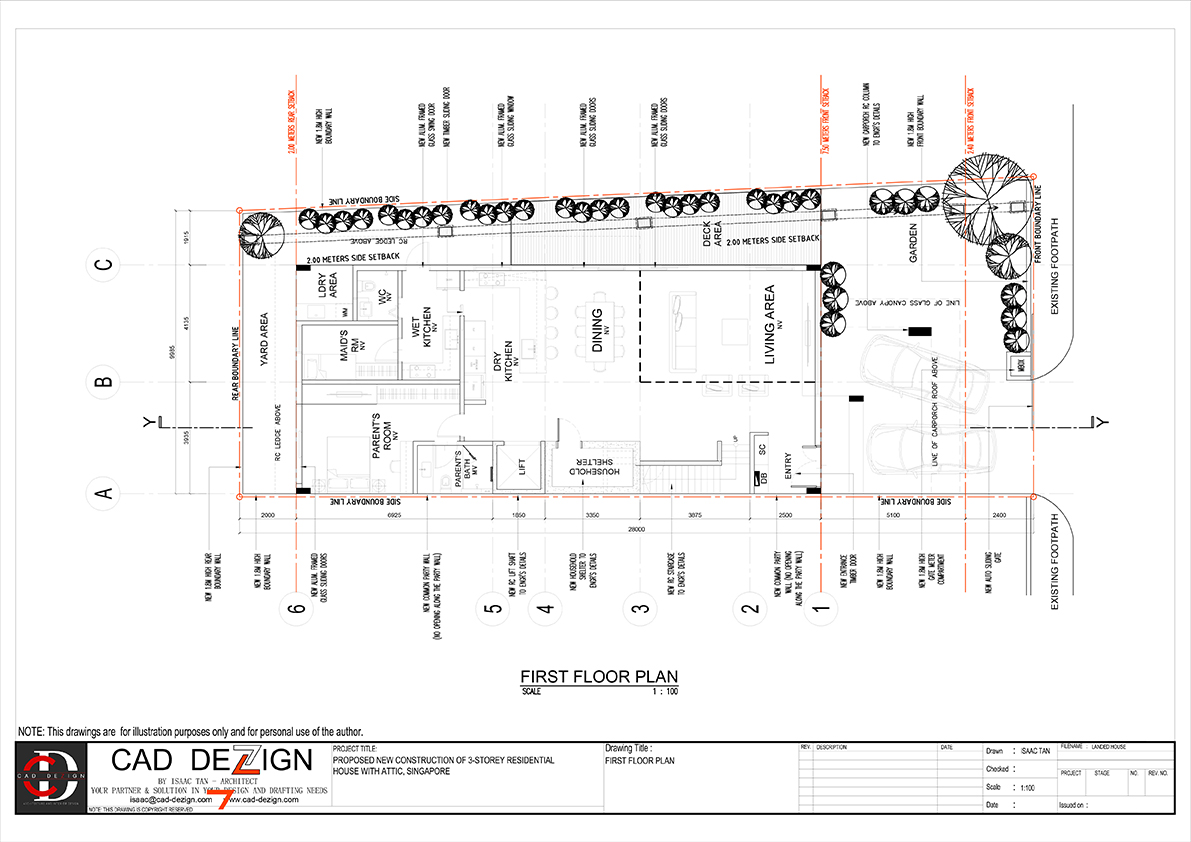
Project Description
2D Design and drafting for Landed houses in Singapore. These houses are a popular type of residential property in Singapore, and they are highly sought after by families who value privacy, space, and exclusivity. Landed houses in Singapore are divided into three categories: Terrace houses, Semi-detached houses, and Bungalow.
