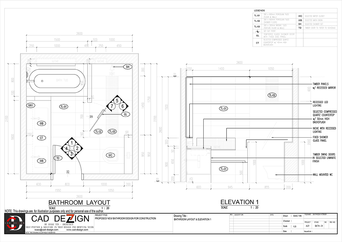
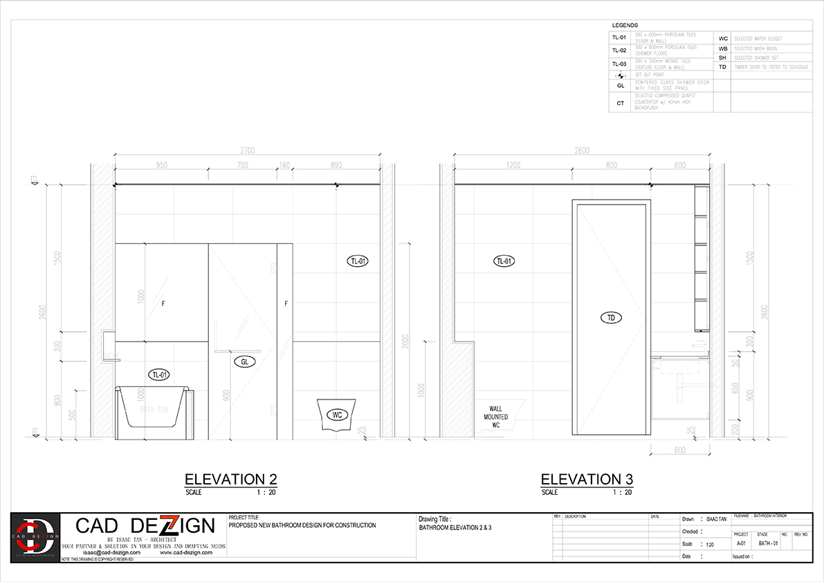
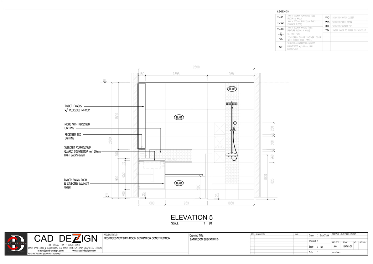
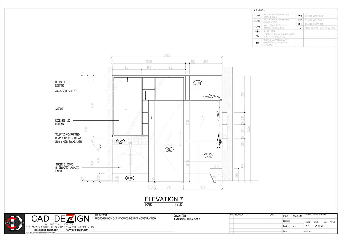
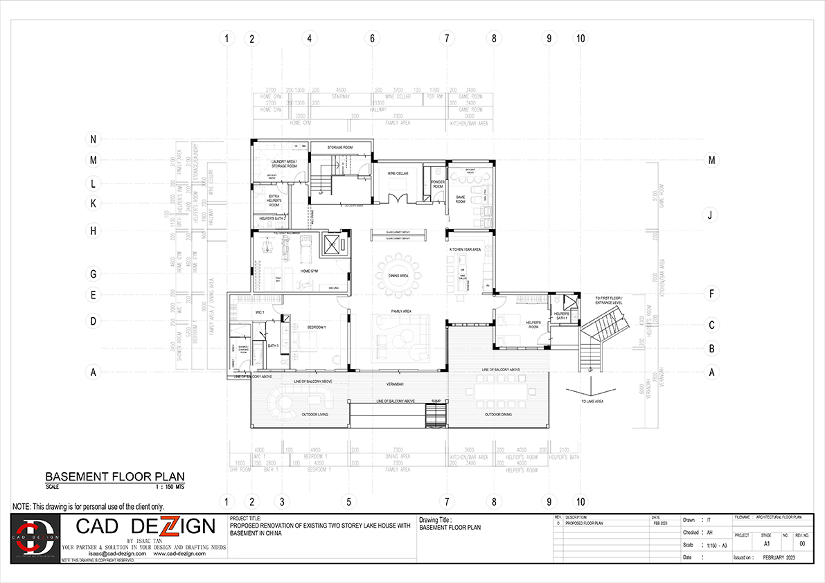
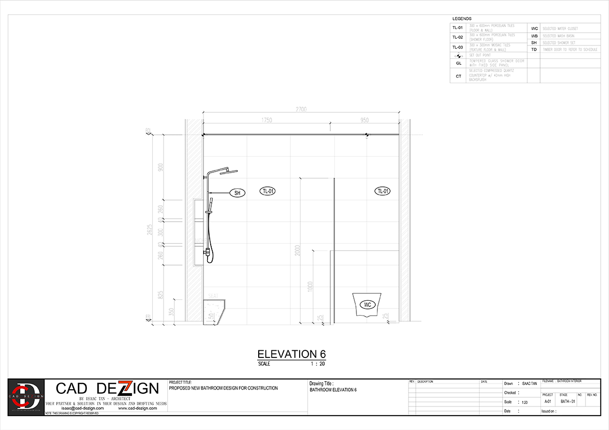
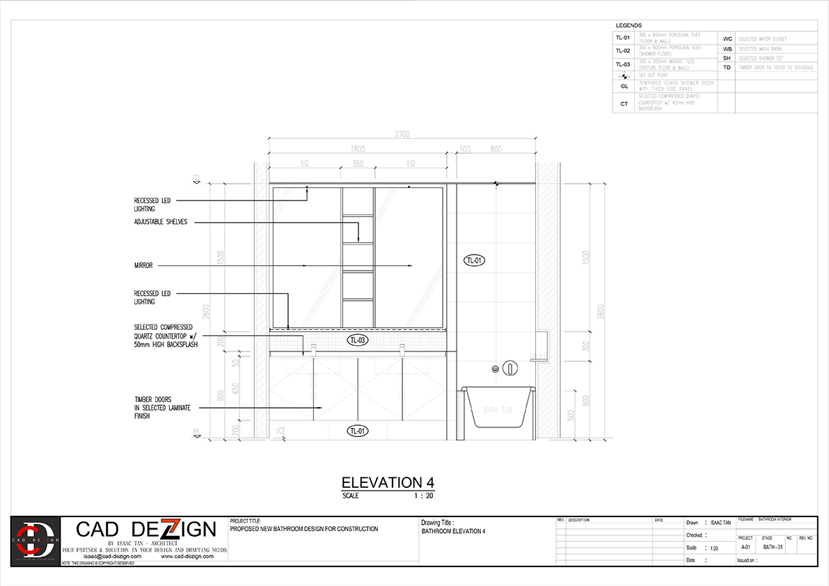
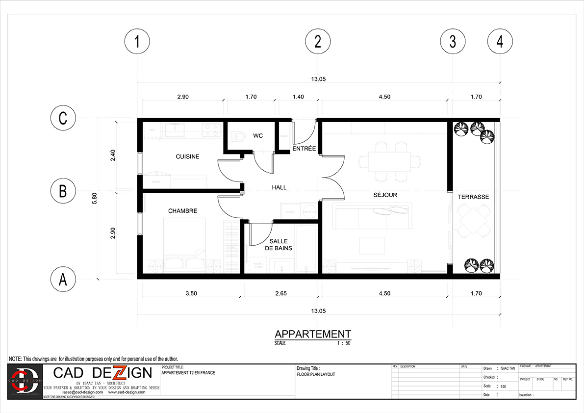
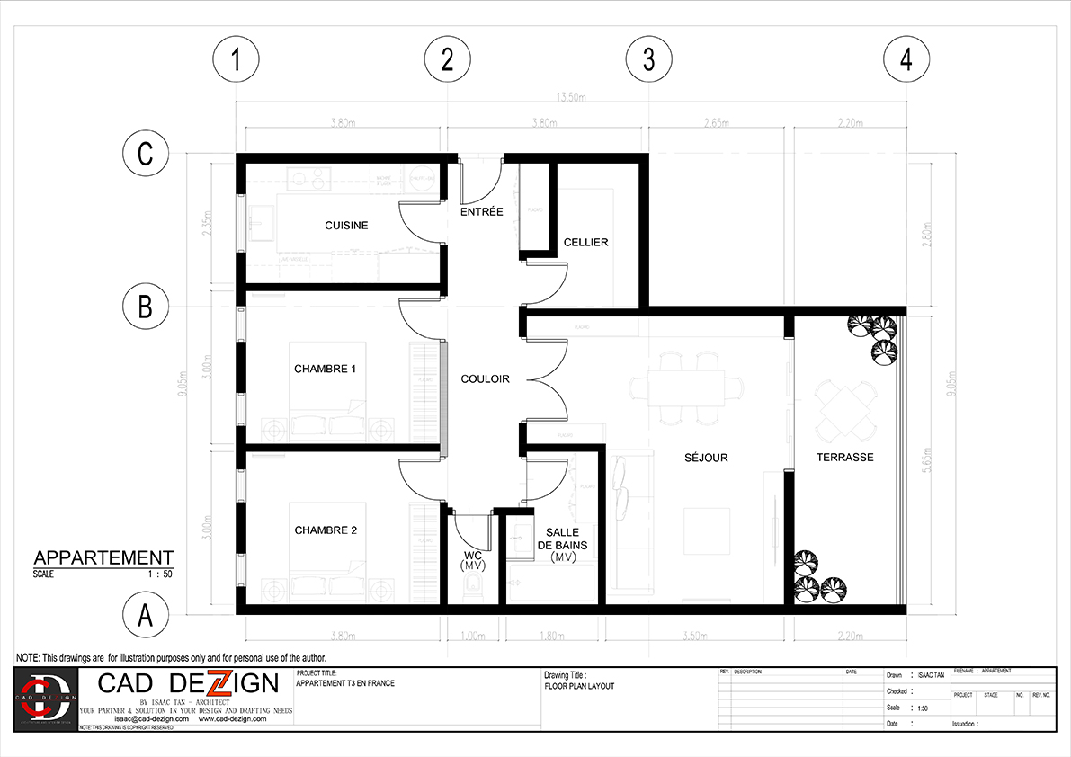
Project Description
2D Construction drawing is one of Cad dezign services, designed to help you achieve your project goals with accuracy, precision, and professionalism. This is to provide detailed drawings that are crucial during construction stage as this will serve as the guide in building the project.
